Medical Clinics & Therapy Centers

Design support for healthcare and therapy facilities, with coordinated architectural and MEP documentation prepared to align with occupancy requirements, accessibility standards, and jurisdictional review criteria.

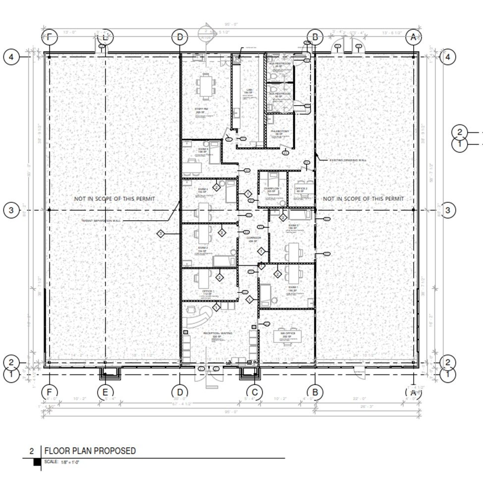
Architectural Drawings

Structural Drawings (as required)

MEP Drawings (Mechanical, Electrical & Plumbing)

Mechanical (HVAC):

Electrical:

Plumbing:

What Our Clients Say

Ready to get your permit
approved faster?

Let’s discuss your project and provide you with a detailed quote